港区南青山2丁目
東京メトロ銀座線 青山一丁目駅 徒歩3分
2LDK / 100.06㎡
2017年12月築
82,000万円

リハウスおすすめ物件


| 物件種別 | 中古マンション |
| 所在地 | GoogleMaps |
| 交通 | |
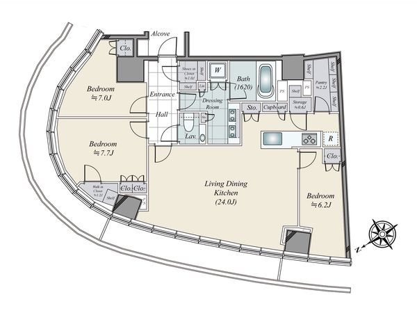
| 間取り | 3LDK |
| 専有面積 | 105.44㎡(約31.89坪) |
| 築年月 | 2017年12月築 |
| 階数 / 階建 | 20階 / 地上26階 地下1階建 |
| 向き | 北西 |
■ 住戸の特徴 ○ 20階・北西・北東角部屋 ※青山霊園向きではございません。 ○ 専有面積105.44平米の広々とした3LDK ○ リビング天高約2750mm ○ 1620タイプのバスルーム ○ 主寝室にウォークインクローゼット ○ トランクルーム付設住戸(使用料あり) ■ マンションの特徴 ○ 国内外の著名な建築家によるデザイン監修 ○ 床から天井までのフルハイトサッシと、ガラス手すりを採用し透明感のあるガラスタワーを表現 ○ エネルギー吸収能力を持つダンパーを設けた制震構造を採用 ○ 防災備蓄倉庫を全フロアに設置 ○ 管理会社を、管理組合の代表とする管理者管理(第三者管理者方式)を採用 ○ 24時間有人管理・コンシェルジュ(1階) ○ 車の入出庫をお任せできるバレーサービスあり ~充実の共用施設~ (最上階)インフィニティプール、ジェットバス&サウナ、フィットネスルーム、トリートメントルーム、パウダールーム (25階)スカイラウンジ、スクリーニングルーム、クラブラウンジ、バー
| 所在地 | GoogleMaps |
| 価格 | 82,000万円 |
| 交通 | |
| 管理費等 | 82,350円 |
| 修繕積立金 | 13,810円 |
| その他費用 | トランクルーム 1,500円 / 月、インターネット 2,090円 / 月 |
| 間取り | 3LDK |
| 専有面積 | 105.44㎡(約31.89坪) |
| 築年月 | 2017年12月築 |
| 階数 / 階建 | 20階 / 地上26階 地下1階建 |
| 向き | 北西 |
| バルコニー | - |
| 現況 | 空家 |
| 駐車場 | 空き無 |
| 建物構造 | 鉄筋コンクリート造 |
| 総戸数 | 163戸 |
| 管理会社 | 三井不動産レジデンシャルサービス(株) |
| 管理形態 | 管理会社に全部委託 |
| 管理員の 勤務形態 | 日勤 |
| 土地権利 | 所有権 |
| 分譲会社 | 三井不動産レジデンシャル(株)、Iconique特定目的会社 (新築分譲時における売主) |
| 施工会社 | (株)大林組 |
| 設計会社 | (株)大林組 |
| 備考 | - |
| 引渡時期 | 相談 |
| 取引態様 | 仲介 |
| 更新日 | 2026年04月17日 |
| 次回更新予定 | 2026年05月01日 |
| 物件番号 | FKQBCA02 |
最新のAI技術を活用した相談サービスです。
お客様一人ひとりのニーズに合わせて最適な情報をご提供します。
リハウスAIチャットの詳しい説明はこちら
三井不動産リアルティ株式会社
国土交通大臣(15)第777号
0120-428-731
0120-428-731
物件の売却をご検討の方は、 はやめの査定依頼がおすすめです!
買い替えをご検討の方はこちら0120-428-731

