横浜市南区吉野町1丁目
横浜市ブルーライン 吉野町駅 徒歩4分
2SLDK / 62.1㎡
1997年02月築
4,480 万円



| 物件種別 | 中古マンション |
| 所在地 | GoogleMaps |
| 交通 | |
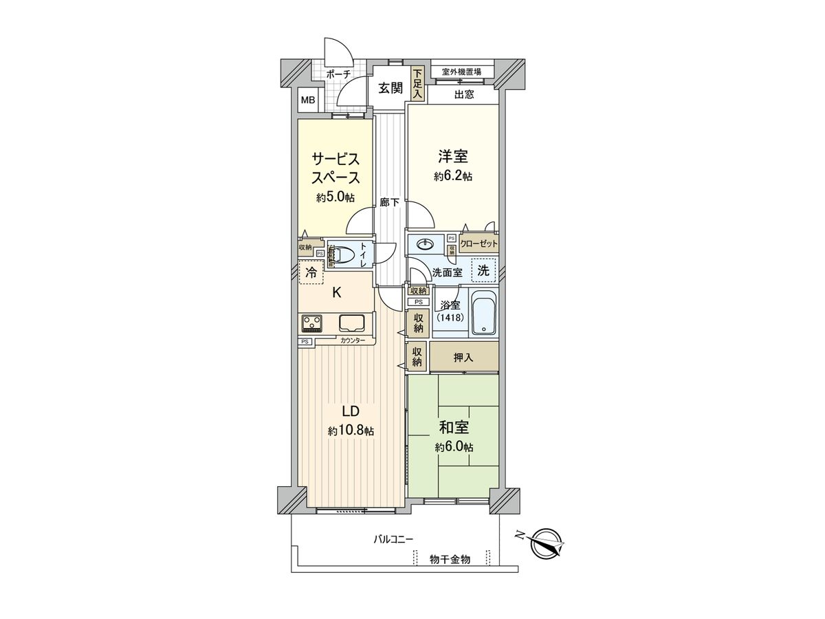
| 間取り | 2SLDK ※S・サービススペースは納戸です |
| 専有面積 | 70.02㎡(約21.18坪) |
| 築年月 | 2002年03月築 |
| 階数 / 階建 | 6階 / 地上7階建 |
| 向き | 南西 |
返済計画を入力すると毎月のお支払い目安を表示できます
■ おすすめポイント ━━━━━━━━━━━━━━━・・・・・ ○ 2路線利用可能な立地・駅まで平坦な道のり 横浜市営地下鉄ブルーライン「弘明寺」駅徒歩3分 京急本線「弘明寺」駅徒歩7分 ○ 6階部分のお部屋につき眺望・通風良好 ○ 南西向きにつき陽当たり良好 ○ 家族との会話が弾む対面式システムキッチン ○ 浴室には追焚機能・浴室換気乾燥機あり ○ 戸建て感覚の玄関ポーチのあるお部屋 ○ リビングダイニングには物入2か所あり ○ 周辺は緑豊かで閑静な住宅地 ■ 担当者より ━━━━━━━━━━━━━━━・・・・・ 周辺環境や施設のご案内はもちろん、周辺物件も併せてご紹介できます。 また、購入に際しての諸費用、住宅ローン(月々の返済例)等、 資金計画のご相談も承っておりますので、ご興味がございましたら下方にございます、 「お問合せ」又は「見学予約」よりお問合せ下さい。 お電話でのご相談も受付けておりますので、 フリーコール「0120-854-254」までお気軽にお問合せ下さいませ。 プライバシーに配慮した個室の接客スペース、 キッズコーナー・おむつ替えスペースもご用意しております。 小さなお子様をお連れしてのご来店も歓迎です。 お車でお越しの際はミオカの駐車場をご利用ください。 駐車場サービス券をお渡ししております。 ご来店お待ちしております。
| 所在地 | GoogleMaps |
| 価格 | 4,480万円 |
| 交通 | |
| 管理費等 | 10,500円 |
| 修繕積立金 | 22,410円 |
| その他費用 | - |
| 間取り | 2SLDK ※S・サービススペースは納戸です |
| 専有面積 | 70.02㎡(約21.18坪) |
| 築年月 | 2002年03月築 |
| 階数 / 階建 | 6階 / 地上7階建 |
| 向き | 南西 |
| バルコニー | 10.79㎡ |
| 現況 | 居住中 |
| 駐車場 | - |
| 建物構造 | 鉄筋コンクリート造 |
| 総戸数 | 70戸 |
| 管理会社 | ナイスコミュニティー(株) |
| 管理形態 | 管理会社に全部委託 |
| 管理員の 勤務形態 | 日勤 |
| 土地権利 | 所有権 |
| 分譲会社 | ナイス(株) (新築分譲時における売主) |
| 施工会社 | (株)フジタ |
| 設計会社 | (株)嘉環境建築設計 |
| 備考 | 建物面積別途ポーチ面積2.63平米あり 建物面積別途室外機置場面積2.10平米あり 建物面積別途メーターボックス面積0.59平米あり |
| 引渡時期 | 相談 |
| 取引態様 | 仲介 |
| 更新日 | 2025年10月24日 |
| 次回更新予定 | 2025年11月07日 |
| 物件番号 | FSPASA10 |
GoogleMaps
| スーパー | スーパー横濱屋 弘明寺店 約160m(徒歩2分) |
| スーパー | 食品館あおば弘明寺店 約610m(徒歩8分) |
| 公園 | 中島町公園 約400m(徒歩5分) |
| 小学校 | 横浜市立大岡小学校 約190m(徒歩3分) |
| 中学校 | 横浜市立南中学校 約720m(徒歩9分) |
| その他利便施設1 | 弘明寺駅(横浜市営地下鉄ブルーライン) 約240m(徒歩3分) |
| その他利便施設2 | 弘明寺駅(京急 本線) 約560m(徒歩7分) |
| その他利便施設3 | 弘明寺かんのん通り商店街 約90m(徒歩2分) |
| その他利便施設4 | セブンイレブン 横浜弘明寺町店 約270m(徒歩4分) |
| その他利便施設5 | クリエイトS・D 弘明寺観音通り店 約300m(徒歩4分) |
三井不動産リアルティ株式会社
国土交通大臣(15)第777号
0120-854-254
リノベーション工事の可能範囲については、本物件の管理組合規約等により一定の制限が加わる場合がございます。詳細については、工事内容の確定後に判明する部分もありますので、この点については事前にお含みおきください。
リノベーションに関するお問い合わせ0120-854-254
物件の売却をご検討の方は、 はやめの査定依頼がおすすめです!
買い替えをご検討の方はこちら0120-854-254
