志木市上宗岡1丁目
東武東上線 志木駅 バス18分 東上ガス 停歩6分
4LDK
建物面積:101.85㎡
土地面積:111.03㎡
新築
2,980万円



| 物件種別 | 新築戸建 |
| 所在地 | GoogleMaps |
| 交通 | 東武東上線 志木駅 バス12分 宗岡蓮田 停歩6分 |
| 間取り | 3LDK |
| 建物面積 | 95.69㎡(約28.94坪) |
| 土地面積 | 95.52㎡(約28.89坪) ※別途私道約95㎡有 (共有持分 1585/9500) |
| 築年月 | 2026年03月築 |
予約制内覧会を開催します!
| 開催日 | 5月16日(土)13:00 ~ 17:00 5月17日(日)13:00 ~ 17:00 5月23日(土)13:00 ~ 17:00 5月24日(日)13:00 ~ 17:00 5月30日(土)13:00 ~ 17:00 |
|---|
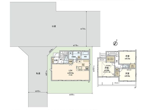
-物件のおすすめポイント ▼立地 ・東武東上線「志木」駅「宗岡循環・宿廻り」バス12分 「宗岡蓮田」停歩6分 ・東武東上線「志木」駅「宗岡循環・宗岡廻り」バス16分も利用可能です ▼建物の特徴 ・角地につき解放感あり ・全居室6帖以上 ▼お部屋の特徴 ・広々としたリビング約20.0帖(PS含) ▼設備 ・家族との会話が弾む対面式キッチン ・窓があり、換気しやすい浴室 ・1・2階トイレ付 ・床下収納庫あり ・ウォークインクローゼット等収納充実 ・2部屋から出入りできるバルコニー ▼周辺環境 ・志木市立宗岡第二小学校まで徒歩1分(約50m) お子様の通学も安心です ■ご希望の住まい探しをお手伝いします━━━━━・・・ 物件の詳細・ご相談はお気軽にお問い合わせください。
| 所在地 | GoogleMaps |
| 価格 | 2,980万円 |
| 交通 | 東武東上線 志木駅 バス12分 宗岡蓮田 停歩6分 |
| その他費用 | - |
| 間取り | 3LDK |
| 建物面積 | 95.69㎡(約28.94坪) |
| 土地面積 | 95.52㎡(約28.89坪) ※別途私道約95㎡有 (共有持分 1585/9500) |
| 築年月 | 2026年03月築 |
| 建物構造 | 木造2階建 |
| 現況 | 空家 |
| 駐車場 | - |
| 土地権利 | 所有権 |
| 地目 | 宅地 |
| 接道状況 | 北西側: 約 7.8m (公道)、南西側: 約 4.2m (私道) |
| 建ぺい率 | 60% |
| 容積率 | 200% |
| 用途地域 | 準工業地域 |
| 都市計画 | 市街化区域 |
| 備考 | - |
| 引渡時期 | 相談 |
| 取引態様 | 仲介 |
| 更新日 | 2026年05月11日 |
| 次回更新予定 | 2026年05月25日 |
| 物件番号 | F42BBA05 |
最新のAI技術を活用した相談サービスです。
お客様一人ひとりのニーズに合わせて最適な情報をご提供します。
リハウスAIチャットの詳しい説明はこちら
GoogleMaps
| スーパー | マミーマート上宗岡店 約900m(徒歩12分) |
| 公園 | 上宗岡5丁目公園 約920m(徒歩12分) |
| 病院 | 医療法人社団武蔵野会TMG宗岡中央病院 約1200m(徒歩15分) |
| 小学校 | 志木市立宗岡第二小学校 約50m(徒歩1分) |
| 中学校 | 志木市立宗岡中学校 約1260m(徒歩16分) |
| その他利便施設1 | セブンイレブン志木上宗岡4丁目店 約400m(徒歩5分) |
| その他利便施設2 | ドラッグ・エース宗岡店 約850m(徒歩11分) |
| その他利便施設3 | 志木市役所 約2390m(徒歩30分) |
0120-61-3131
0120-61-3131
物件の売却をご検討の方は、 はやめの査定依頼がおすすめです!
買い替えをご検討の方はこちら0120-61-3131

