神戸市灘区鶴甲2丁目
阪急神戸線 六甲駅 バス8分 鶴甲2 停歩2分
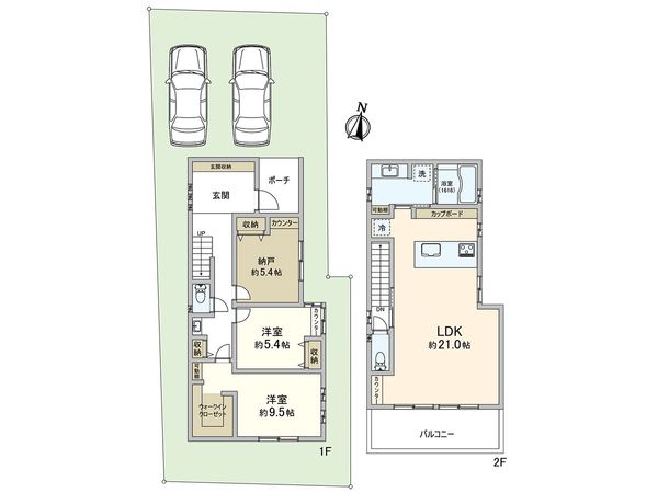
3LDK
建物面積:117.71㎡
土地面積:147.48㎡
新築
条件を変更する
沿線・駅
阪急神戸線 御影
変更する
物件の種別
新築一戸建て
変更する
こだわり条件
新築戸建



8,480万円
神戸市東灘区住吉山手3丁目 / 阪急神戸線 御影駅 徒歩12分
2SLDK / 建物114.26㎡ / 土地157.77㎡ / 2026年05月築(予定)
新築戸建



6,480万円
神戸市東灘区住吉山手1丁目 / 東海道本線(米原~神戸) 住吉駅 徒歩13分
2SLDK / 建物100.07㎡ / 土地140.34㎡ / 新築
新築戸建



4,980万円
神戸市東灘区渦森台4丁目 / 阪急神戸線 御影駅 バス10分 渦森台4丁目 停歩7分
4LDK / 建物137.07㎡ / 土地193.6㎡ / 2026年04月築(予定)
マンションライブラリー
全国で分譲されたマンションをご紹介
全国で分譲された7万棟超のマンションを
エリアごとにご紹介します。売り出し中・
貸し出し中の物件情報も掲載しております。
豊富な取引実績をもとにご所有不動産の推定成約価格※を即時にAIで査定します。
※当社保有データから機械的に算出した参考価格です

