角地の奈良県 生駒市の一戸建て購入情報
立地から物件を探したい方へ。奈良県 生駒市の角地の一戸建てを集めました。
中古戸建



生駒市真弓南1丁目
5,880万円
リノベーション&リフォーム
生駒市真弓南1丁目 / 近鉄けいはんな線 学研北生駒駅 バス6分 真弓四丁目 停歩11分
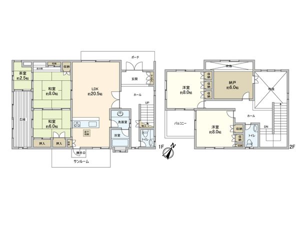
6LDK / 建物206.58㎡ / 土地424.79㎡ / 1989年07月築
中古戸建



生駒市あすか野南2丁目
1,750万円
生駒市あすか野南2丁目 / 近鉄けいはんな線 白庭台駅 徒歩22分
3LDK / 建物94.09㎡ / 土地203.23㎡ / 1978年03月築
生駒市の物件情報
他の都道府県から探す
人気の価格帯・立地・特徴から探す
マンションライブラリー
マンションライブラリー
全国で分譲されたマンションをご紹介
全国で分譲された7万棟超のマンションを
エリアごとにご紹介します。売り出し中・
貸し出し中の物件情報も掲載しております。

不動産売却で失敗しないためのポイント
不動産売却に関するお問い合わせ
無料査定で価格をチェック!
まずは気軽に無料査定。業界最大級のネットワークを誇る三井のリハウスがご提案いたします。リハウスAI査定
豊富な取引実績をもとにご所有不動産の推定成約価格※を即時にAIで査定します。
※当社保有データから機械的に算出した参考価格です




