BELS/省エネ基準適合認定書ありの兵庫県 神戸市東灘区の一戸建て購入情報
特徴から物件を探したい方へ。兵庫県 神戸市東灘区のBELS/省エネ基準適合認定書ありの一戸建てを集めました。
新築戸建



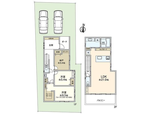
住吉山手1丁目 新築戸建 1号地
6,780万円
神戸市東灘区住吉山手1丁目 / 東海道本線(米原~神戸) 住吉駅 徒歩13分
2SLDK / 建物100.07㎡ / 土地140.34㎡ / 2026年01月築(予定)
神戸市東灘区の物件情報
他の都道府県から探す
人気の価格帯・立地・特徴から探す
マンションライブラリー
マンションライブラリー
全国で分譲されたマンションをご紹介
全国で分譲された7万棟超のマンションを
エリアごとにご紹介します。売り出し中・
貸し出し中の物件情報も掲載しております。

不動産売却で失敗しないためのポイント
不動産売却に関するお問い合わせ
無料査定で価格をチェック!
まずは気軽に無料査定。業界最大級のネットワークを誇る三井のリハウスがご提案いたします。リハウスAI査定
豊富な取引実績をもとにご所有不動産の推定成約価格※を即時にAIで査定します。
※当社保有データから機械的に算出した参考価格です




