朝霞市岡2丁目
東武東上線 朝霞台駅 徒歩18分
3LDK
建物面積:98.53㎡
土地面積:110.09㎡
新築
4,698万円



| 物件種別 | 新築戸建 |
| 所在地 | GoogleMaps |
| 交通 | 東武東上線 志木駅 徒歩13分 |
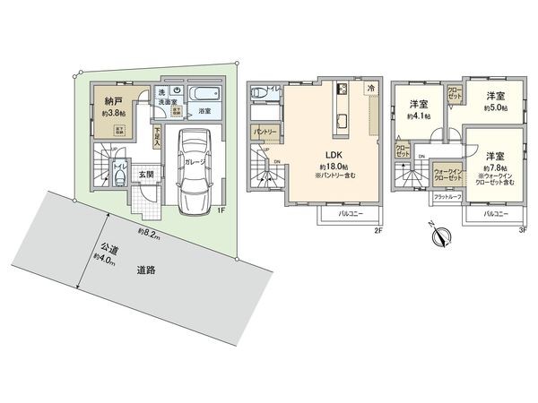
| 間取り | 2SLDK ※S・サービススペースは納戸です |
| 建物面積 | 107.13㎡(約32.4坪) |
| 土地面積 | 60.31㎡(約18.24坪) ※別途私道約18.77㎡有 (共有持分 1/2) |
| 築年月 | 2025年10月築 |
返済計画を入力すると毎月のお支払い目安を表示できます
-物件のおすすめポイント ▼立地 ・東武東上線「志木」駅まで徒歩13分 ▼建物の特徴 ・2階と3階の2カ所にバルコニーがあり1度に沢山の洗濯物を干すことができます。 ・ビルトインガレージで雨風から大切な愛車を守れます ・駐車1台可(車種による) ▼お部屋の特徴 ・広々としたLDK約18帖 ▼設備 ・家族との会話が弾む対面式キッチン ・収納力の高いウォークインクローゼット付 ▼周辺環境 ・徒歩圏内にコンビニエンスストアやスーパーがあり、住環境良好 ・公園が近くにあり、毎日のお散歩も快適な閑静な住宅地 ■ご希望の住まい探しをお手伝いします━━━━━・・・ 物件の詳細・ご相談はお気軽にお問い合わせください。
| 所在地 | GoogleMaps |
| 価格 | 4,698万円 |
| 交通 | 東武東上線 志木駅 徒歩13分 |
| その他費用 | - |
| 間取り | 2SLDK ※S・サービススペースは納戸です |
| 建物面積 | 107.13㎡(約32.4坪) |
| 土地面積 | 60.31㎡(約18.24坪) ※別途私道約18.77㎡有 (共有持分 1/2) |
| 築年月 | 2025年10月築 |
| 建物構造 | 木造3階建 |
| 現況 | 空家 |
| 駐車場 | - |
| 土地権利 | 所有権 |
| 地目 | 宅地 |
| 接道状況 | 南西側: 約 4m (公道) |
| 建ぺい率 | 60% |
| 容積率 | 160%(※但し、前面道路幅員により容積率160%に制限されます。) |
| 用途地域 | 第一種中高層住居専用地域 |
| 都市計画 | 市街化区域 |
| 備考 | ※専有面積107.13平米に車庫面積14.12平米を含む ※LDK約18帖にパントリー面積含む ※洋室約7.8帖にWIC面積含む |
| 引渡時期 | 相談 |
| 取引態様 | 仲介 |
| 更新日 | 2025年12月08日 |
| 次回更新予定 | 2025年12月22日 |
| 物件番号 | F42AGB5A |
最新のAI技術を活用した相談サービスです。
お客様一人ひとりのニーズに合わせて最適な情報をご提供します。
リハウスAIチャットの詳しい説明はこちら
GoogleMaps
| スーパー | TAIRAYA朝霞三原店 約440m(徒歩6分) |
| 公園 | ひがし児童遊園 約180m(徒歩3分) |
| 病院 | 新座志木中央総合病院 約890m(徒歩12分) |
| 小学校 | 朝霞市立朝霞第五小学校 約920m(徒歩12分) |
| 中学校 | 朝霞市立朝霞第三中学校 約1670m(徒歩21分) |
| その他利便施設1 | ファミリーマート朝霞三原五丁目店 約420m(徒歩6分) |
| その他利便施設2 | サンドラッグ朝霞三原店 約360m(徒歩5分) |
| その他利便施設3 | 朝霞三原郵便局 約870m(徒歩11分) |
0120-61-3131
0120-61-3131
物件の売却をご検討の方は、 はやめの査定依頼がおすすめです!
買い替えをご検討の方はこちら0120-61-3131

