対面式キッチン有りの愛知県 津島市の一戸建て購入情報
設備から物件を探したい方へ。愛知県 津島市の対面式キッチン有りの一戸建てを集めました。
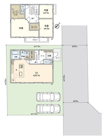
中古戸建



津島市又吉町4丁目
2,690万円
津島市又吉町4丁目 / 名鉄尾西線 町方駅 徒歩4分
3LDK / 建物106.08㎡ / 土地152.92㎡ / 2011年09月築
津島市の物件情報
他の都道府県から探す
人気の価格帯・立地・特徴から探す
マンションライブラリー
マンションライブラリー
全国で分譲されたマンションをご紹介
全国で分譲された7万棟超のマンションを
エリアごとにご紹介します。売り出し中・
貸し出し中の物件情報も掲載しております。

不動産売却で失敗しないためのポイント
不動産売却に関するお問い合わせ
無料査定で価格をチェック!
まずは気軽に無料査定。業界最大級のネットワークを誇る三井のリハウスがご提案いたします。リハウスAI査定
豊富な取引実績をもとにご所有不動産の推定成約価格※を即時にAIで査定します。
※当社保有データから機械的に算出した参考価格です




