省エネルギー対策の神奈川県 高座郡寒川町の一戸建て購入情報
特徴から物件を探したい方へ。神奈川県 高座郡寒川町の省エネルギー対策の一戸建てを集めました。
NEW
7日以内に新着物件が3件公開されました。
新着情報をメールで受け取りたい方は
NEW
新築戸建



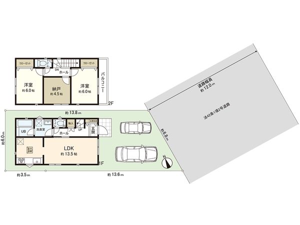
寒川町岡田8丁目 新築戸建 2号棟
3,180万円
高座郡寒川町岡田8丁目 / 相模線 寒川駅 徒歩23分
2SLDK / 建物72.9㎡ / 土地93.34㎡ / 2025年12月築(予定)
NEW
新築戸建



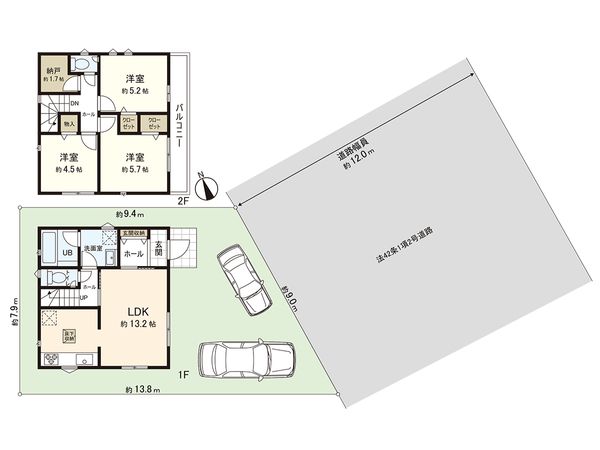
寒川町岡田8丁目 新築戸建 1号棟
2,980万円
高座郡寒川町岡田8丁目 / 相模線 寒川駅 徒歩23分
3SLDK / 建物73.7㎡ / 土地92.56㎡ / 2025年12月築(予定)
NEW
新築戸建



寒川町一之宮4丁目 新築戸建
3,280万円
高座郡寒川町一之宮4丁目 / 相模線 寒川駅 徒歩13分
3SLDK / 建物90.72㎡ / 土地125.64㎡ / 2025年11月築(予定)
高座郡寒川町の物件情報
他の都道府県から探す
人気の価格帯・立地・特徴から探す
マンションライブラリー
マンションライブラリー
全国で分譲されたマンションをご紹介
全国で分譲された7万棟超のマンションを エリアごとにご紹介します。売り出し中・ 貸し出し中の物件情報も掲載しております。

不動産売却で失敗しないためのポイント
不動産売却に関するお問い合わせ
無料査定で価格をチェック!
まずは気軽に無料査定。業界最大級のネットワークを誇る三井のリハウスがご提案いたします。リハウスAI査定
豊富な取引実績をもとにご所有不動産の推定成約価格※を即時にAIで査定します。 ※当社保有データから機械的に算出した参考価格です
