8,000万円台の埼玉県 越谷市の一戸建て購入情報
価格帯から物件を探したい方へ。埼玉県 越谷市の8,000万円台の一戸建てを集めました。
新価格
中古戸建



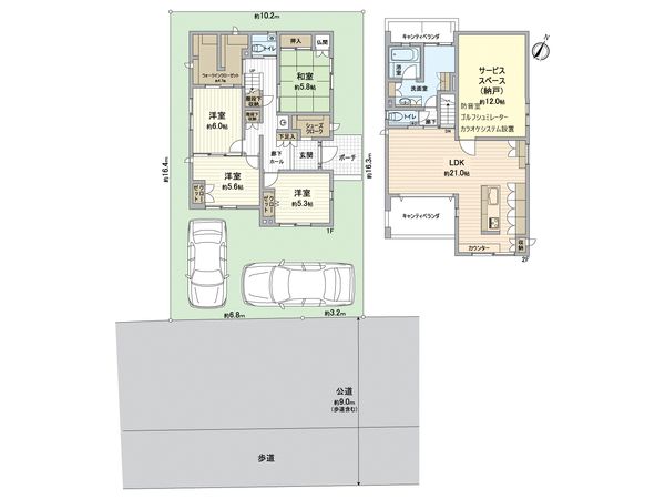
越谷市レイクタウン1丁目 戸建
8,980万円
越谷市レイクタウン1丁目 / 武蔵野線 越谷レイクタウン駅 徒歩15分
4SLDK / 建物150.19㎡ / 土地167.39㎡ / 2019年01月築
越谷市の物件情報
他の都道府県から探す
人気の価格帯・立地・特徴から探す
マンションライブラリー
マンションライブラリー
全国で分譲されたマンションをご紹介
全国で分譲された7万棟超のマンションを
エリアごとにご紹介します。売り出し中・
貸し出し中の物件情報も掲載しております。

不動産売却で失敗しないためのポイント
不動産売却に関するお問い合わせ
無料査定で価格をチェック!
まずは気軽に無料査定。業界最大級のネットワークを誇る三井のリハウスがご提案いたします。リハウスAI査定
豊富な取引実績をもとにご所有不動産の推定成約価格※を即時にAIで査定します。
※当社保有データから機械的に算出した参考価格です




